スキップフロアの
ある暮らし
空間に“奥行き”と“変化”が生まれる
空間を“段差”でゆるやかに区切りながら、1階や2階にもつながりも感じられる。「広さ」はそのままに、「奥行き」と「高さ」を加えることで、住まいに遊び心と機能性が生まれます。子育て世代にも、収納力を求める方にも人気のスキップフロア。三洋ハウスでは、土地形状や暮らし方に合わせてご提案しています。
親子の距離感を心地よくキープ
スキップフロアは、子どもの勉強スペースや遊び場にも最適。「同じ空間にいるけど、少しだけ離れている」この距離感が、子育て世代にちょうどいい安心感をもたらします。
デッドスペースを活かした大容量収納
スキップフロア下の“床下空間”を利用した収納スペースは、生活感を見せずにすっきり。季節物や趣味用品などの保管にも便利です。
光と空間が織りなす開放的な住空間
吹き抜けとスキップフロアが一体となった空間は、家全体に光と風を効果的に取り込み、抜群の開放感をもたらします。高い位置に設けた窓からは、日中の明るい日差しが降り注ぎ、心地よい風が家中を巡ります。自然エネルギーを最大限に活かすパッシブデザインの考え方を取り入れ、明るく健やかな暮らしを提案します。
1F
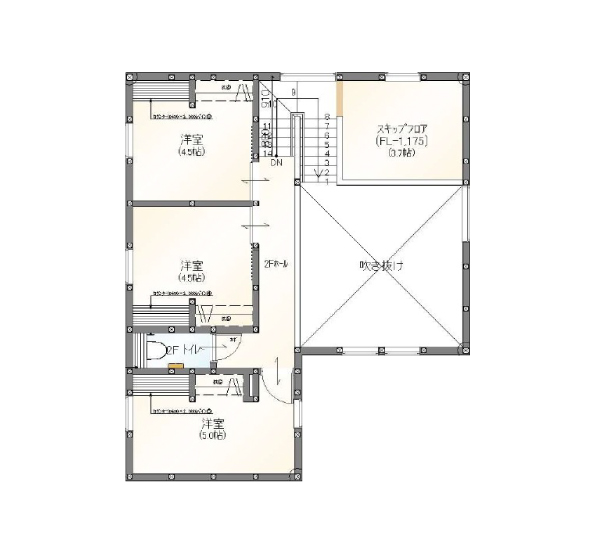
2F
| 敷地面積 | 建築面積 | 延床面積 |
|---|---|---|
| 240.06㎡(72.61坪) | 92.54㎡(27.99坪) | 123.58㎡(37.38坪) |
| 敷地面積 | 240.06㎡(72.61坪) |
|---|---|
| 建築面積 | 92.54㎡(27.99坪) |
| 延床面積 | 123.58㎡(37.38坪) |