【分譲住宅・分譲地】日之出町1区画 2階建て 建売 ※建築中 | 三洋ハウス | 鹿児島の新築注文住宅・ハウスメーカー

Sale分譲地・建売住宅情報

TOP分譲住宅・分譲地日之出町1区画 2階建て 建売 ※建築中
建売住宅

日之出町1区画 2階建て 建売 ※建築中

2,938万円(税込)
借入金額 2,938万円
月々支払 64,093
  • ※登記に伴い諸費用が別途必要です。
  • ※上記支払例の借入条件:提携銀行 金利1.1% 借入期間40年 ボーナス払い年2回加算69,681円
Point

◆省令準耐火住宅◆半樹脂サッシ◆駐車場2台分

Gallery画像ギャラリー

画像をクリックで拡大できます。

Floor Plan間取り

1F

1F床面積 44.71㎡(13.52坪)

日之出町1区画 2階建て 建売 ※建築中 間取り

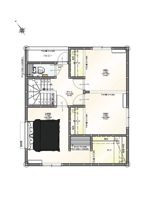
2F

2F床面積 43.88㎡(13.27坪)

日之出町1区画 2階建て 建売 ※建築中 間取り
敷地面積 建築面積 延床面積
116.58㎡(35.26坪) 46.37㎡(14.02坪) 88.59㎡(26.79坪)
敷地面積 116.58㎡(35.26坪)
建築面積 46.37㎡(14.02坪)
延床面積 88.59㎡(26.79坪)

Base Spec建物仕様

ウォークインクローゼット
食洗機
浴室乾燥機
浴室暖房
省令準耐火住宅
オール電化
Low-Eガラス
半樹脂サッシ
ウレタン断熱
駐車2台

Information物件概要

所在地 鹿児島市日之出町 価格 分譲価格 2,938万円(税込)
土地面積 116.58㎡(35.26坪) 権利の種類 所有権
用途地域 第一種低層住居専用地域 地目 宅地
都市計画 市街地区域 建ぺい率 50%
容積率 80% 設備 オール電化・上下水道
引渡時期 相談 現況 建築中(2025年12月完成予定)※その他、付帯工事費が発生します。詳しくはお問合せ下さい。
取引様態 売主 建築確認番号 鹿建第1230650-1号
学校区 西紫原小学校 徒歩12分(900m)
西紫原中学校 徒歩20分(1600m)

Environment周辺環境

日之出町1区画 2階建て 建売 ※建築中

西紫原小学校まで900m

日之出町1区画 2階建て 建売 ※建築中

西紫原中学校まで1600m

日之出町1区画 2階建て 建売 ※建築中

カリタス幼稚園まで550m

日之出町1区画 2階建て 建売 ※建築中

日之出保育園まで450m

日之出町1区画 2階建て 建売 ※建築中

鹿児島銀行宇宿支店まで1200m

日之出町1区画 2階建て 建売 ※建築中

宇宿三郵便局まで1300m

日之出町1区画 2階建て 建売 ※建築中

タイヨー紫原店まで700m

日之出町1区画 2階建て 建売 ※建築中

サンキュー新栄店まで1200m

日之出町1区画 2階建て 建売 ※建築中

オプシアミスミまで1600m

日之出町1区画 2階建て 建売 ※建築中

ハンズマン宇宿店まで1600m

日之出町1区画 2階建て 建売 ※建築中

市電 二軒茶屋駅まで700m

日之出町1区画 2階建て 建売 ※建築中

JR南鹿児島駅まで1100m

Contact Formお問い合わせフォーム

    • 来場予約の際は皆さまへスムーズなご案内をさせていただくために、来場希望日の前日17:00までにご予約ください。
    • 自動返信メールの後、担当者からのご予約対応のご返信を以って受付完了とさせていただきます。弊社定休日や担当者がお休みをいただいている場合は翌営業日以降のご連絡となる場合がございます。また、ご予約が重なった場合、大変恐れ入りますが日程の調整をお願いさせていただくことがございます。
    • メールアドレスを登録された方には、自動で確認メールを送信しております。メールアドレスの誤入力、携帯電話のドメイン指定受信の設定などにより確認メールを受信出来ない場合がございます。迷惑メールなどに入っている場合もございますので、再度受信設定をご確認ください。確認メールが届かない場合は、当社からの返信を受信出来ない可能性がございますので、お手数ですが、メール以外の連絡方法を追記の上、再度お問い合わせいただきますようお願い致します。
    • 来場予約特典は三洋ハウスに初めてご来場いただいた方のみ対象です。また、特典内容は変更となる場合がございます。予めご了承ください。
    • ご本人確認のため、身分証明書のご提示をお願いする場合があります。その他、進呈条件がございますので予めご了承下さい。

    カタログ全般

    無料プレゼント

    お客様と共に創り上げた
    こだわりが詰まった住まい
    まずはカタログ請求から始めましょう

    資料請求はこちら
    三洋ハウスのカタログ

    感動の家づくりを今すぐモデルハウスで体験しよう

    ご来場予約はこちら

    個別でゆっくりとご体感いただけます。
    平日も土日もお気軽にご予約ください。

    事前予約限定!10,000円の
    グルメカタログをプレゼント!

    ※特典は「ANAフレッシュセレクション グルメ カタログギフト」になります。
    ※特典商品の表紙や内容はリニューアルさせていただく場合がございます。

    来場予約する